HOTLINE MIỄN PHÍ:

0945588860

Bộ Bơm Nước Thải Zoeller 920 (Dao Nghiền)

Liên hệ

Tình trạng tồn kho:

Hết hàng

Mã sản phẩm:

Thương hiệu:

Zoeller
Mô tả:

Bộ bơm nâng nước thải Zoeller 920 (Dao nghiền)

Thông tin sản phẩm

Bộ Bơm Nước Thải Zoeller Model 920 (Dao Nghiền)

Hệ thống bơm nâng tự động với mô tơ mạnh mẽ kết hợp cánh nghiền và chỉ số IP đáng tin cậy, cung cấp giải pháp xử lý nước thải sinh hoạt và thương mại.

Tính năng và Lợi Ích

  • Phù hợp cho các biệt thự cao cấp, trung tâm mua sắm, siêu thị, khách sạn, nhà hàng, ga tàu điện ngầm, bãi xe và những nơi không thể xả nước thải theo trọng lực. Lắp đặt trong môi trường không có hố thu
  • Dễ dàng lắp đặt ở những không gian hẹp. Đầu vào nước đa vị trí phù hợp với nhiều môi trường lắp đặt khác nhau
  • Lưỡi dao bằng thép không gỉ , có khả năng cắt lên đến 200,000 lần mỗi phút
  • Nắp đậy kín chống mùi hôi. Thiết kế nắp đậy giúp bảo trì dễ dàng và nhanh chóng
  • Chậu và nắp được gia cố bằng khung nhựa lý tưởng để sử dụng trong các ứng dụng lắp đặt độc lập
  • Thiết kế thân bồn chống nổi
  • Thiết kế lõm trên thành bên ngoài giúp dễ dàng cầm nắm di chuyển

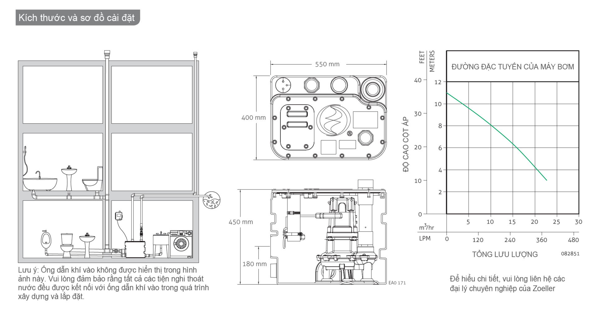
Thông số kỹ thuật sản phẩm

  • Điệp áp: 220-240V / 50Hz
  • Nhiệt độ hoạt động tối đa: 40 ° C / 104 ° F
  • Dung tích: 90 lít
  • Mức Bơm Hoạt Động: 260 mm
  • Mức Bơm Dừng: 160 mm
  • HP (W), Ampe, Xử lý chất rắn: 1.03 kW, 5.2 A

Sản phẩm liên quan